Bạn là chủ đầu tư đang tìm kiếm thông tin về cửa lên mái để sử dụng cho công trình của bạn? Bạn là Kiến trúc sư đang tìm kiếm giải pháp thiết kế để đưa vào các bản vẽ kiến trúc? Thấu hiểu được sự băn khoăn của chủ đầu tư, nhà thầu, kiến trúc sư trong việc tìm kiếm giải pháp lên mái các công trình, công ty TNHH Kỹ Thuật Xây Dựng Epower đã tiên phong đi đầu đưa cửa lên mái (còn gọi là cửa thăm mái/ cửa trên mái nhà) với sự linh động về kích thước, chất liệu mà vẫn đảm bảo được các yêu cầu kĩ thuật về Việt Nam với hy vọng mang được công nghệ mới tiên tiến trên thế giới về nước nhà.
Dưới đây là một số thông tin cần biết về Hệ cửa lên mái trên thị trường:
1. Lợi ích khi lắp đặt cửa lên mái:
|
![]() |
2. Ứng dụng của Cửa thăm mái
3. Các kích thước thường gặp của hệ Cửa thăm mái
Cửa lên mái có rất nhiều kích thước khác nhau, Khách hàng có thể lựa chọn được kích thước phù hợp cho công trình của mình, dưới đây chúng tôi xin đề xuất những kích thước tiêu chuẩn của nhà sản xuất.

|
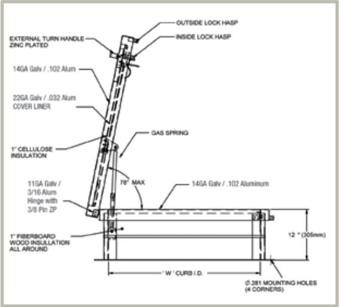
4. Ví dụ minh họa về cửa mái/Cửa trên mái nhà) cho mái Tôn/mái nhôm (Loại mái thông dụng) Cửa lên mái được làm từ thép không gỉ hoặc nhôm. Thiết kế đóng mở rất dễ dàng, tiện lợi. Người vận hành cửa lên mái có thể mở và đóng một cách dễ dàng vì bên trong thiết kế có tay đẩy thủy lực cầm bên trong cho phép điều khiển thuận tiện khi đóng mở nắp. Có thể khóa từ 2 phía trong và ngoài. Chốt cửa: Tự chốt bên ngoài tay cầm chữ T bằng thép không gỉ. Mở tối đa tại một góc 78 độ Nắp có thể chịu được hoạt tải 40 lbs./sq.st. |
![]() |
|||